Místo: Rokytnice v Orlických horách

Typ: novostavba

Stupeň: projekt

Datum: 2024

Investor: developerská společnost

Popis projektu

Autor: Ing. arch. Václav Hájek

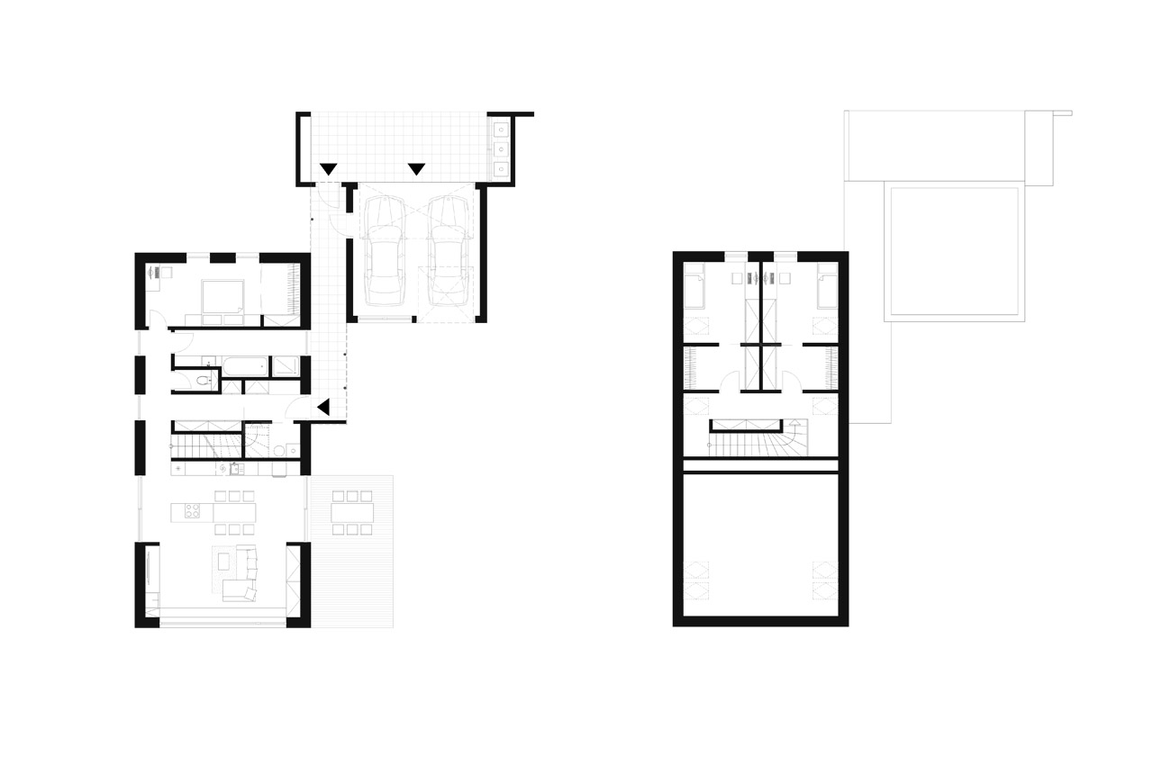
Navržená zástavba se nachází na okraji města na pozemku bývalé výrobní haly. Obytný soubor tvoří šest shodných rodinných domů a jeden bytový dům včetně související účelové komunikace a sítí technické infrastruktury. Komunikace je napojena stávajícím sjezdem na přilehlou ulici, od které je oddělena travnatým pásem se stromořadím. Tvar jednopodlažních typových rodinných domů vychází z tradičního venkovského stavení se sedlovou střechou. Jednoduchá obdélná hmota domu je zastřešena sedlovou střechou. Hlavní obytná místnost je otevřená do krovu a nad ostatními místnostmi přízemí se nachází podkrovní místnosti. Hmota bytového domu rovněž zastřešeného sedlovou střechou navazuje na okolní větší patrové domy. Celková výška domu dodržuje výškovou hladinu těchto domů v okolí a zároveň tak zástavba graduje směrem k centru města. Severní a štítové fasády domu jsou spíše plné, naopak jižní strana domu se otevírá do zahrady francouzskými okny, která vedou na prostorné lodžie. Na severní straně pak vystupuje ze střešní roviny vikýř, který osvětluje schodišťový prostor. V bytovém domě se bude nacházet šest bytů velikosti 3+kk a dva byty 2+kk.